4.9 Containerships greater than 100 m
Clasification Society 2024 - Version 9.40
Statutory Documents - IMO Publications and Documents - International Codes - Intact Stability (IS) Code - Intact Stability for All Types of Ships Covered by IMO Instruments – Resolution A.749(18) - Annex - Code on Intact Stability for all Types of Ships Covered by IMO Instruments - Chapter 4 - Special Criteria for Certain Types of Ships - 4.9 Containerships greater than 100 m

4.9 Containerships greater than 100 m

  4.9.3 The use of electronic loading and stability computers is encouraged in determining the ship's trim and stability during different operational conditions.

4.9.1 Application

 These requirements apply to containerships greater than 100 m as defined in 1.3.12. They may also be applied to other cargo ships with considerable flare or large waterplane areas. The Administration may apply the following criteria instead of those in paragraphs 3.1.2.1 to 3.1.2.4.

4.9.2 Intact stability

  4.9.2.1 The area under the righting lever curve (GZ curve) should not be less than 0.009/C metre-radians up to θ = 30° angle of heel, and not less than 0.016/C metre-radians up to θ = 40° or the angle of flooding θ f (as defined in 3.1.2) if this angle is less than 40°.

  4.9.2.2 Additionally, the area under the righting lever curve (GZ curve) between the angles of heel of 30° and 40° or between 30° and θf, if this angle is less than 40°, should not be less than 0.006/C metre-radians.

  4.9.2.3 The right lever GZ should be at least 0.033/C m at an angle of heel equal or greater than 30°.

  4.9.2.4 The maximum righting lever GZ should be at least 0.042/C m.

  4.9.2.5 The total area under the righting lever curve (GZ curve) up to the angle of flooding θf should not be less than 0.029/C metre-radians.

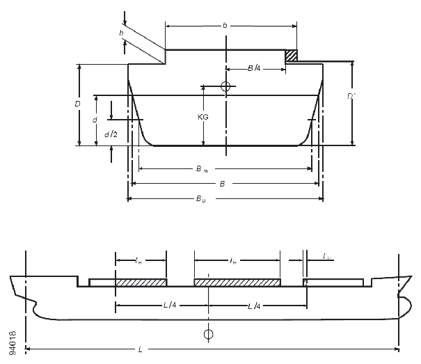
  4.9.2.6 In the above criteria the form factor C should be calculated using the formula and figure 4.9-1:.

C =
d = mean draught in m
D' = moulded depth of the ship, corrected for defined parts of volumes within the hatch coamings according to the formula:
D' = , as defined in figure;
D = moulded depth of the ship in m;
BD = moulded breadth of the ship in m;
KG = height of the centre of mass above base, corrected for free surface effect, not be taken as less than d, in m
CB = block coefficient;
Cw = waterplane coefficient.
l H = length of each hatch coaming within L/4 forward and aft from amidships, in m (see figure 4.9-1);
b = mean width of hatch coamings within L/4 forward and aft from amidships, in m (see figure 4.9-1);
h = mean height of hatch coamings within L/4 forward and aft from amidships, in m (see figure 4.9-1);
L = length of the ship, in m;
B = breadth of the ship on the waterline, in m;
Bm = = breadth of the ship on the waterline at half mean draught, in m.

The shaded areas in figure 4.9-1 represent partial volumes within the hatch coamings considered contributing to resistance against capsizing at large heeling angles when the ship is on a wave crest.

Figure 4.9.1


Copyright 2022 Clasifications Register Group Limited, International Maritime Organization, International Labour Organization or Maritime and Coastguard Agency. All rights reserved. Clasifications Register Group Limited, its affiliates and subsidiaries and their respective officers, employees or agents are, individually and collectively, referred to in this clause as 'Clasifications Register'. Clasifications Register assumes no responsibility and shall not be liable to any person for any loss, damage or expense caused by reliance on the information or advice in this document or howsoever provided, unless that person has signed a contract with the relevant Clasifications Register entity for the provision of this information or advice and in that case any responsibility or liability is exclusively on the terms and conditions set out in that contract.